REKONSTRUKCE PODKROVNÍCH BYTŮ V TURNOVĚ
kategorie_studie
rok_2009
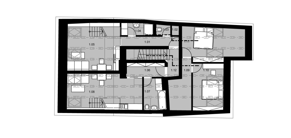
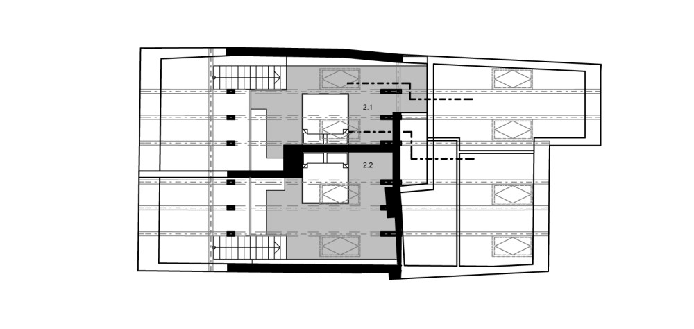
Budova se nachází v historické části Turnova blízkosti náměstí. Částečněje dům využíván pro komerční potřeby a částečně pro bydlení. Vsoučasné době je celý krov v dezolátním stavu a je nutná jeho renovace.Přáním investora bylo rozšíření bytových prostor do podkroví. V okolí je problém s parkováníma byty nemají přístup na terasu či zahradu. Z těchto důvodů jsou navrženébyty vhodné především pro páry bez dětí a studenty. Dva mezonetové byty, které jsouorientovány na východ do ulice jsou zároveň prosvětleny střešním oknem z prostoruložnice v horní části bytu. Ve spodní části bytu je situován obývací pokoj s kuchyní,koupelnou a WC. Třetí byt je rozšířením garsoniéry s terasou v 1. NP. Nově navrženéschodiště tento byt rozšíří o dva pokoje. Návrh vychází z konstrukčních možností krovua zachovává původní nosné zdi. Zároveň také počítá se zachováním dvou komínů.





